Skip to product information
New 3-bedroom American house plan

Plan Details
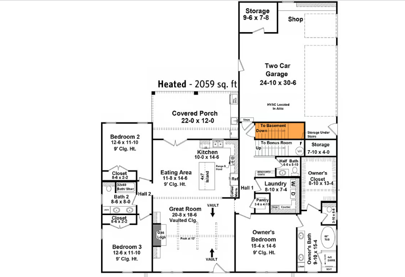
This modern farmhouse plan welcomes you with a charming front porch with a dormer window that opens to the vaulted great room inside. As you walk through the front door, you'll immediately feel the spaciousness of the great room, kitchen, and dining area.
The vaulted ceiling and fireplace in the great room contribute to that feeling of openness and warmth. The kitchen features an island with a breakfast bar. Additionally, a large pantry and a spacious laundry room are located next to the dining area.
The split layout allows for a pleasant escape to the master suite, with a large bathroom and walk-in closet. Two other bedrooms on the left side of the home feature closets and share a large bathroom.
Expand the bonus room and gain an additional 462 square feet of expansion space.
Enjoy expanded living space on the covered back porch with an outdoor kitchen.
Please note: By choosing the basement foundation, the home's habitable square footage increases to 2,059 heated square feet (compared to 2,041 square feet for the slab/crawl version). All foundation types have the same overall width and depth.
Related plans: Get alternative exteriors with the 51188MM, 51184MM, and 51125MM house plans.
What's Included
Cover: Shows the architectural rendering of the residence. Floor Plan(s): Generally, each set of house plans includes 1/4" scale floor plans with a schedule of doors and windows.
Foundation Plan and Details
Electrical Plan with Symbol Legend: Generally, each set of house plans includes an electrical plan that will show the suggested locations of lights, receptacles, switches, etc.
Roof Drainage Plan: Generally, each set of house plans may include a roof drainage plan that will show the layout of all roof sections/plans.
Exterior Elevations: Generally, each set of house plans includes all applicable front, side, and rear elevations, as well as any special exterior details.
Interior Elevations: When applicable, each set of house plans includes relevant interior elevations, including cabinetry, cabinet details, columns, and walls with unique conditions.
Building Sections and Details
What's Not Included
Architectural or engineering seal: Managed locally if necessary
Site plan: Managed locally when necessary
Mechanical drawings (location of heating and air conditioning equipment and ductwork): Your subcontractors handle these
Plumbing drawings (plans showing the actual sizes and locations of plumbing pipes): Your subcontractors handle these
Energy calculations: Managed locally when necessary

You may also like